Внутренняя канализация и основные аспекты ее устройства включают правильный выбор труб, монтаж системы с учетом норм и стандартов, а также регулярное техническое обслуживание для предотвращения засоров и долговечности эксплуатации.
Внутренняя канализация – это система, которая обеспечивает отвод сточных вод из здания в наружную канализацию. Она играет важную роль в поддержании гигиены и безопасности в здании.
Создание качественной и надёжной системы водоотведения в доме – это важный аспект, который требует внимательного подхода и грамотного планирования. От правильной установки зависит не только комфортное проживание, но и долговечность всей конструкции здания. В этом разделе мы подробно рассмотрим все этапы, необходимые для реализации надежной системы водоотведения.
Проектирование и выбор материалов
Первый шаг на пути к созданию эффективной системы водоотведения начинается с проектирования. Важно учитывать все технические характеристики и требования, чтобы избежать возможных проблем в будущем. Правильный выбор материалов и комплектующих играет ключевую роль в долговечности и надежности всей системы. Особое внимание стоит уделить качеству труб и фитингов, ведь именно они определяют устойчивость к износу и способность справляться с высокими нагрузками.
Технология монтажа
Технология установки системы водоотведения включает в себя несколько этапов, каждый из которых требует внимательности и профессионализма. Важно соблюдать все нормативные требования и рекомендации, чтобы обеспечить корректную работу всех элементов. Профессиональный монтаж позволит избежать множества проблем, таких как протечки, засоры и неприятные запахи.
Регулярное техническое обслуживание
Для того чтобы система водоотведения служила долгие годы без сбоев, необходимо регулярно проводить техническое обслуживание. Очистка труб и проверка всех узлов помогут своевременно выявлять и устранять мелкие неисправности, предотвращая их перерастание в серьезные проблемы. Своевременное обслуживание также позволяет поддерживать систему в оптимальном состоянии и увеличивает её срок службы.
Следуя этим рекомендациям, вы сможете создать надежную и долговечную систему водоотведения, которая будет служить вам долгие годы, обеспечивая комфорт и уют в вашем доме.
Внутренняя канализация и основные аспекты проектирования и обслуживания

При проектировании системы отведения сточных вод важно учитывать не только функциональность, но и долговечность компонентов. Использование качественных материалов и правильный монтаж являются ключевыми факторами успеха. Эффективная система отведения использованных вод должна быть спроектирована так, чтобы минимизировать риск утечек и обеспечивать свободное движение воды.
После установки системы, регулярное техническое обслуживание становится важным аспектом. Это включает в себя периодическую проверку труб на предмет повреждений, очистку сифонов и использование средств для предотвращения образования налета. Правильное обслуживание позволяет продлить срок службы системы и избежать дорогостоящих ремонтов.
Таким образом, грамотный подход к проектированию и регулярное техническое обслуживание системы отведения сточных вод являются залогом ее эффективной работы. В следующем разделе мы подробно рассмотрим этапы проектирования и дадим рекомендации по выбору материалов и инструментов для монтажа.
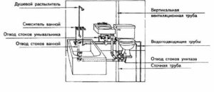
Основные элементы и их функции
Для эффективного функционирования любой системы водоотведения важно знать основные компоненты и их предназначение. Каждый элемент выполняет свою уникальную роль, обеспечивая безопасное и надежное перемещение сточных вод. Давайте рассмотрим ключевые части этой системы и их значимость.
Трубы: Они являются главными магистралями, по которым перемещаются отходы. В зависимости от местоположения и предназначения, трубы могут быть различных диаметров и материалов. Их основная задача – транспортировка сточных вод от источника до места утилизации.
Сифоны: Эти устройства предназначены для предотвращения попадания неприятных запахов в помещения. Они создают водяной затвор, блокируя обратное движение воздуха из системы.
Канализационные стояки: Вертикальные трубы, которые обеспечивают отведение сточных вод с нескольких этажей здания. Они играют ключевую роль в многоквартирных домах и высотных сооружениях, обеспечивая бесперебойную работу системы.
Колена и отводы: Эти фитинги используются для изменения направления трубопроводов. Они позволяют гибко настраивать конфигурацию системы, обеспечивая ее адаптацию к особенностям конструкции здания.
Коллекторы: Эти элементы собирают сточные воды из нескольких источников и направляют их в центральную магистраль. Коллекторы особенно важны в крупных системах, где необходимо объединить потоки отходов.
Ревизии и люки: Эти компоненты обеспечивают доступ к трубопроводам для их обслуживания и прочистки. Ревизии устанавливаются на стратегически важных участках системы, упрощая процесс контроля и ремонта.
Понимание функций каждого элемента позволяет не только правильно проектировать систему, но и своевременно проводить ее обслуживание, предотвращая аварийные ситуации и продлевая срок службы оборудования.
Этапы проектирования системы

Проектирование инженерной системы требует внимательного и детального подхода. На данном этапе важно учитывать все аспекты, начиная с анализа потребностей и заканчивая финальными расчетами. Рассмотрим основные шаги, которые помогут создать эффективную и надежную систему.
-
Анализ потребностей
Прежде всего необходимо определить основные требования к будущей системе. Это включает в себя изучение существующих условий, объемов потребления и особенностей эксплуатации.
-
Разработка концепции
На этом этапе формируется общее представление о проекте, включая выбор подходящих решений и методов их реализации. Разрабатываются предварительные схемы и чертежи, которые станут основой для дальнейшей работы.
-
Подготовка проектной документации
Следующий шаг включает в себя создание подробных планов, спецификаций и расчетов. Это важный этап, так как здесь определяется точное расположение всех элементов системы и их технические характеристики.
-
Координация и согласование
Проект должен быть согласован со всеми заинтересованными сторонами, включая контролирующие органы. Это гарантирует соответствие всех параметров проекту и нормативным требованиям.
-
Оценка затрат и составление сметы
После согласования всех деталей, необходимо составить бюджет проекта. Это включает в себя оценку стоимости материалов, работ и других расходов, связанных с реализацией системы.
-
Разработка графика выполнения работ
Важным шагом является создание четкого плана выполнения работ, который включает в себя все этапы реализации проекта и сроки их выполнения. Это помогает контролировать процесс и избежать задержек.
Правильное выполнение всех этапов проектирования позволяет создать надежную и эффективную систему, которая будет отвечать всем требованиям и обеспечит комфорт и безопасность эксплуатации.
Материалы и инструменты для монтажа
Основные материалы:
- Трубы: Используются для транспортировки воды и отходов. Могут быть выполнены из различных материалов, таких как ПВХ, полипропилен и чугун.
- Фитинги: Специальные соединительные элементы, которые обеспечивают герметичное соединение труб между собой.
- Уплотнительные кольца: Предназначены для предотвращения протечек в местах соединений.
- Крепежные элементы: Кронштейны, хомуты и другие элементы, необходимые для надежной фиксации труб на стенах или потолке.
Необходимые инструменты:
- Труборез: Инструмент для аккуратной и точной резки труб до нужной длины.
- Паяльник: Используется для сварки пластиковых труб и фитингов, обеспечивая надежное соединение.
- Разводной ключ: Незаменим для затягивания и ослабления соединений.
- Отвёртки: Понадобятся для закрепления крепежных элементов и установки деталей системы.
- Уровень: Обеспечивает точность установки, что важно для правильного функционирования всей системы.
- Рулетка: Для измерения и разметки труб и других элементов перед их установкой.
Правильное использование указанных материалов и инструментов позволит вам провести монтажные работы качественно и эффективно. Следуйте инструкциям и рекомендациям, и ваша система будет функционировать безупречно долгие годы.
Частые неполадки и способы их устранения

В данном разделе рассматриваются распространенные трудности, с которыми сталкиваются владельцы систем внутреннего стока, а также эффективные методы для их разрешения. При эксплуатации таких устройств неизбежно возникают проблемы, требующие внимательного подхода и оперативных действий для предотвращения серьезных последствий.
- Запечатывание сливных отверстий: образование отложений, блокирующих свободный отток воды.
- Проблемы с запахом: неприятные запахи, вызванные наличием органических остатков.
- Засоры в трубах: накопление мусора и загрязнений, препятствующих нормальному функционированию системы.
- Протечки и подтеки: возможные повреждения или неисправности в уплотнительных соединениях.
- Неполадки с насосами: проблемы с механизмами, ответственными за перекачку сточных вод.
Для эффективного управления подобными сложностями необходимо регулярно проводить техническое обслуживание и оперативно реагировать на первые признаки возможных неполадок. Важно следить за состоянием системы и своевременно производить необходимые ремонтные работы, чтобы избежать серьезных проблем и дополнительных расходов.
Регулярное обслуживание и предупреждение проблем
Важное внимание к техническим аспектам системы необходимо для поддержания её эффективной работы на долгие годы. Регулярные процедуры проверки и обслуживания помогают предотвращать потенциальные проблемы, сохраняя функциональность и предотвращая неприятные инциденты.
| Проверка течей и засоров | Регулярная проверка на наличие утечек и засоров является первоочередной задачей для поддержания нормальной работы системы. |
| Очистка и обслуживание трубопроводов | Проведение периодической чистки и обслуживания трубопроводов помогает избежать образования отложений и засоров, что может привести к ухудшению проходимости и функциональности системы. |
| Проверка и обновление уплотнений | Регулярная проверка состояния и необходимость обновления уплотнений и прокладок помогает избежать возможных утечек и повреждений системы. |
| Контроль уровня и качества воды | Важно поддерживать контроль за уровнем и качеством воды в системе, чтобы избежать коррозии и других проблем, связанных с качеством жидкости. |
Эффективное регулярное обслуживание и предупреждение проблем являются ключевыми аспектами для долгосрочной надёжности и безопасности работы вашей системы водоотведения.
Советы по экономии и эффективности
1. Оптимизация расхода воды: Для достижения экономии стоит обратить внимание на уменьшение потребления воды в бытовых нуждах. Использование современных технологий позволяет эффективно управлять расходом воды без ущерба для функциональности системы.
2. Регулярное техническое обслуживание: Важно регулярно проводить проверки и обслуживание вашей системы, чтобы избежать потенциальных утечек и поломок. Это поможет предотвратить необходимость в крупных ремонтах и сократить расходы на восстановление функциональности.
3. Использование устойчивых материалов: При выборе материалов для строительства и ремонта системы важно отдавать предпочтение долговечным и экологически чистым материалам. Это не только уменьшает затраты на обслуживание, но и снижает воздействие на окружающую среду.
4. Обучение пользователей: Осведомление жильцов о правильном использовании сантехнических устройств и методах экономии воды играет ключевую роль в повседневной эксплуатации системы. Это способствует долгосрочной экономии и повышает общую эффективность.
5. Мониторинг и анализ: Внедрение системы мониторинга расхода воды и эффективности работы внутренней системы позволяет оперативно выявлять потенциальные проблемы и оптимизировать процессы без значительных затрат.
Применение вышеупомянутых методов позволит достичь сбалансированного подхода к эксплуатации внутренней системы водоотведения, что в свою очередь обеспечит не только экономию ресурсов, но и повысит её эффективность в долгосрочной перспективе.
И дальше будем вас знакомить с полезной информацией на тему Как выбрать канализацию и канализационное оборудование
